
Фильтр ФГГ-350
цена от
 605 700 руб.
- Исполнение – горизонтальное
- Номинальный диаметр DN – 350 мм
- Номинальное давление PN – до 10,0 МПа
- Тонкость фильтрации – 4, 8, 12, 16 или 25 мм
- Максимальная производительность – 600 м³/ч
- Материал корпуса – 09Г2С / 12Х18Н10Т / другая сталь
- Блочное исполнение – опционально
- Теплоизоляция – опционально
- Комплектация КИП, ЗРА – опционально
- Резервные фильтрующие элементы – опционально
Фильтр-грязеуловитель ФГГ-350 с номинальным диаметром DN 350 и пропускной способностью 600 м³/ч предназначен для очистки нефтепродуктов на промышленных предприятиях и магистральных трубопроводах средней мощности. Модель эффективно удаляет частицы размером до 4 мм, защищая технологическое оборудование от износа и коррозии. Благодаря внутреннему диаметру корпуса 700 мм, ФГГ-350 подходит для работы с вязкими средами, такими как мазут или тяжелые нефтепродукты.
 
															Примеры применения
- Нефтеперерабатывающие заводы: Фильтрация сырой нефти перед подачей в атмосферно-вакуумные колонны.
- Теплоэлектростанции: Очистка мазута для горелок, работающих в условиях повышенных температур.
- Химические комплексы: Защита реакторов от попадания металлической стружки и песка.
Особенности ФГГ-350
- Усиленная осадочная камера: Накопление до 50% загрязнений до попадания на фильтрующие элементы, что снижает частоту обслуживания.
- Адаптация к высоким давлениям: Рабочее давление до 10 МПа позволяет использовать фильтр на участках с перепадами давления.
- Термостойкость: Корпус из низколегированной стали марки 09Г2С выдерживает температуры от -20°C до +80°C.
- Быстросъемные элементы: Замена кассет занимает не более 1 часа благодаря боковому люку с ручным затвором.
Технические параметры фильтра для нефти ФГГ-350
| Обозначение | Фильтр ФГГ-350 | 
| Производительность, м³/ч | 600 | 
| Условное давление, Pу, МПа | 1,6; 2,5; 4,0; 6,3; 8,0 или 10,0 | 
| Температура нефти, ℃ | От -15 до +80 | 
| Температура нефтепродуктов, ℃ | От -20 до +80 | 
| Степень фильтрации, мм | 4, 8, 12, 16 или 25 | 
| DN, мм | 350 | 
| Dp, мм (внутренний диаметр корпуса) | 700 | 
| L, мм (расстояние от фланца корпуса до кромки осевого патрубка) | 4200 | 
| L1, мм (расстояние от оси бокового патрубка) | 1500 | 
| H, мм (расстояние от оси ФГГ до опоры) | 1000 | 
| L2, мм (расстояние между опорами) | 2100 | 
| L3, мм (расстояние до опоры) | 1200 | 
| Обозначение | Блочный фильтр ФГГ-350 | 
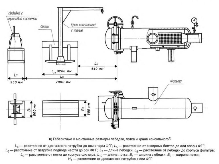
| L7, мм (длина лебедки) | 950 | 
| L8, мм (расстояние от лебедки до корпуса фильтра) | 7000 | 
| L9, мм (расстояние от лотка до корпуса фильтра) | 440 | 
| L10, мм (длина лотка) | 3200 | 
| В2, мм (ширина лотка) | 650 | 
| В1, мм (ширина лебедки) | 800 | 
| L5, мм (расстояние от анкерных болтов до оси опоры ФГГ) | 0 | 
| L6, мм (расстояние от патрубка подвода нефти до оси ФГГ) | 780 | 
| L4, мм (расстояние от дренажного патрубка к оси опоры) | 1250 | 
| Н1, мм (расстояние от дренажного патрубка до оси ФГГ) | 530 | 
| Радиус вылета быстроразъемного концевого затвора, мм | 1330 | 
| Количество штурвалов быстроразъемного концевого затвора, шт | 1 | 
Чертеж фильтра ФГГ-350
 
															Чертеж блочного фильтра ФГГ-350
 
															Преимущества ООО "УЗСК"
- Изготовление корпусов с антистатическим покрытием для работы с легковоспламеняющимися нефтепродуктами.
- Возможность комплектации датчиками давления с выводом данных в систему АСУ ТП.
- Разработка, производство, контроль, доставка в Димитровграде и шефмонтаж под ключ от 20 рабочих дней.
Расшифровка условного обозначения
 
															Например, фильтр грязеуловитель горизонтальный ФГГ номинальным диаметром DN 350 на номинальное давление PN 4,0 МПа, блочного исполнения, с осевым отводом нефти или нефтепродуктов, с правым расположением патрубка подвода нефти или нефтепродуктов, в сейсмостойком исполнении С по MSK — 64 [10], без теплоизоляции, вид климатического исполнения УХЛ1 по ГОСТ 15150 будет обозначаться следующим образом: ФГГ-350-4,0-Б-0-П-С-УХЛ1.
Заполните форму заказа

 
                                         
                                         
                                        




